Przemysłowa brama szybkobieżna wewnętrzna SpeedRoll SDI
Bramy szybkobieżne rolowane SpeedRoll SDO do użytku wewnętrznego przeznaczone są do izolacji i zachowania mikroklimatu pomieszczeń w obiektach przemysłowych, magazynowych, handlowych i innych.

Brama przemysłowa szybkobieżna rolowana - widok ogólny.
Obszary aplikacji
Kompleksy magazynowe

Obiekty przemysłowe

Zalety
1
Praca z dużą prędkością
- do 2,5 m/s

2
Szeroka gama modeli

3
Napęd własnej produkcji

4
Pełna gama wyposażenia dodatkowego

Design
Rama bramy - typy powierzchni

Rama bramy bez malowania wykonane ze stali ocynkowanej

Rama bramy wykonana ze stali nierdzewnej AISI 304
Rama / płaszcz PCV - kolory standardowe

RAL 9010 (Biały)

RAL 9006 (Srebrny)

RAL 5002 (Niebieski)

RAL 6026 (Zielony)

RAL 1003 (Żółty)

RAL 2004 (Pomarańczowy)

RAL 3002 (Czerwony)
Budowa
- Napęd elektryczny
- Wał
- Skrzynia na wał
- Skrzydło bramy szybkobieżnej
- Wkładka przezroczysta (okno / panel)
- Pionowy przewodnik
- Prowadnice do przesuwania płaszcza bramy
- Dolna krawędź bezpieczeństwa
- Fotokomórki
- Jednostka sterująca
- Przeciwwaga

Brama szybkobieżna w standardowej wersji
(napęd z boku)

Brama szybkobieżna w standardowej wersji
(napęd z przodu)

Brama szybkobieżna z przeciwwagą
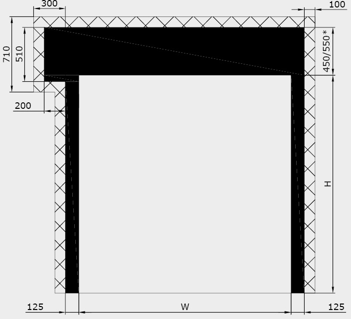
Wymiary otworu
| Parametr | Wskaźnik |
|---|---|
| Szerokość otwierania, mm | od 2 000 do 5 700 |
| Wysokość otwarcia, mm | od 1 800 do 5 800 |
| Nadproże, mm | od 600 |
| Węgarki, mm | od 225 do 475 |
Tabela rozmiarów
Wysokość, mm |
6000 | ||||||||||||
| 5500 | |||||||||||||
| 5000 | |||||||||||||
| 4500 | |||||||||||||
| 4000 | |||||||||||||
| 3500 | |||||||||||||
| 3000 | |||||||||||||
| 2500 | |||||||||||||
| 1800 | |||||||||||||
| 1500 | 2000 | 2500 | 3000 | 3500 | 4000 | 4500 | 5000 | 5500 | 6000 | 6500 | 7000 | ||
Szerokość, mm |
|||||||||||||
Przygotowanie obiektu budowlanego

Wszystkie pomiary są wykonywane w pomieszczeniu.
Pomiar każdej wartości musi być dokonany co najmniej w trzech punktach:
Pomiar każdej wartości musi być dokonany co najmniej w trzech punktach:
H - wysokość otworu (odległość od podłogi do góry otworu);
W - szerokość otworu (odległość od lewej krawędzi do prawej krawędzi otworu).
WYMAGANIA DOTYCZĄCE PLACU BUDOWY
Przy pomiarze H i W dla ostatecznego rozmiaru przyjmowana jest największa wartość.
Sposoby instalacji

Montaż natynkowy bramy szybkobieżnej
Standardowe rozwiązania projektowe
Widok ogólny bramy szybkobieżnej z napędem bocznym (napęd lewostronny / napęd prawostronny, z przeciwwagą / bez przeciwwagi)

PARAMETRY OTWORU DLA TEJ MODYFIKACJI
| Usl. oznaczenie, nazwa parametru | Wzór obliczeniowy |
|---|---|
| H, mm Wysokość otworu | od 1 800 do 5 800 |
| B, mm Szerokość otworu | od 2 000 do 5 700 |
Widok ogólny bramy szybkobieżnej z napędem przednim (przednim lewym / przednim prawym, z przeciwwagąa / brak przeciwwagi)

PARAMETRY OTWORU DLA TEJ MODYFIKACJI
| Usl. oznaczenie, nazwa parametru | Wzór obliczeniowy |
|---|---|
| H, mm Wysokość otworu | od 1 800 do 5 800 |
| B, mm Szerokość otworu | od 2 000 do 5 700 |
Podstawowe wyposażenie

Kompletna skrzynka
Jest to zmontowany pojemnik ochronny z bocznymi osłonami, wałem i kapsułkami, mechanizmem sterującym - ręcznym lub automatycznym.

Wał bramy szybkobieżnej
Wykonany ze stali ocynkowanej o średnicy 90/130 mm.

Prowadnice
Wykonane z wytłaczanego polietylenu

Tkanina
Neprzezroczyste, wzmocnione PCV o gęstości 900-1 200 g / m²

Jednostka sterująca
Stalowa obudowa lakierowana 300 x 400 x 150 mm; klasa ochrony - IP54; z przetwornicą częstotliwości

Fotokomórki
Są zainstalowane na wysokości 500 mm od podłogi, a także w wysokich punktach stronie rozpórki zidentyfikować nieprawidłowe odwijania wstęgi podczas otwierania.
Dodatkowe wyposażenie

Prowadnice i skrzynka
Wykonane ze stali nierdzewnej AISI304, AISI316

Obudowa sterownika
Wykonana ze stali nierdzewnej AISI304

Ogrzewanie
Napędu i skrzynki

Krawędziowa listwa optyczna
Podczas zamykania, w przypadku dotknięcia wrażliwej dolnej krawędzi do przeszkody, sygnał jest wysyłany z czujnika przez kanał radiowy do jednostki sterującej, aby otworzyć bramę; W przypadku awarii zasilania brama otwiera się automatycznie z przeciwwagą
Podczas zamykania, w przypadku dotknięcia wrażliwej dolnej krawędzi do przeszkody, sygnał jest wysyłany z czujnika przez kanał radiowy do jednostki sterującej, aby otworzyć bramę; W przypadku awarii zasilania brama otwiera się automatycznie z przeciwwagą
Specyfikacja techniczna
| Parametr | Znaczenie | Uwaga: |
|---|---|---|
| Odporność na obciążenie wiatrem, klasa Pa (GOST 31174) | KLASA1 | do bram o szerokości do 7 000 mm |
| Odporność na obciążenie wiatrem, klasa Pa (GOST 31174) | CLASS2 | do bram o szerokości do 4 000 mm |
| Prędkość otwierania, m / s | 2.0 | brama do 3 000 x 3 000 mm |
| Prędkość otwierania, m / s | 1.8 | brama do 5 000 x 5 000 mm |
| Prędkość otwierania, m / s | 1.0 | brama do 7 000 x 6 000 mm |
| Prędkość zamykania, m / s | 0,8 | |
| Zakres temperatury roboczej, ° С | -15 do +70 | jeśli napęd jest zainstalowany wewnątrz budynku |
| Zakres temperatury roboczej, ° С | -5 do +70 | jeśli napęd jest zainstalowany na zewnątrz budynku |
| Zakres temperatury roboczej, ° С | Od -35 do +70 | Podczas korzystania z szafy i napędu systemu grzewczego |
| Moc, W | 1 500 | |
| Stopień ochrony IP | IP54 | pozycje krańcowe są śledzone przez enkoder |
| Napięcie zasilania, V | 220 V / 50 Hz | jednofazowy |
| Napięcie zasilania, V | 380 V / 50 Hz | trójfazowy |
| Niezawodność, liczba cykli otwierania i zamykania, nie mniej niż | 1 500 000 | zależy od warunków pracy |
Warunki eksploatacji produktu
- W celu zapewnienia niezawodnego i bezproblemowego działania bramy szybkobieżnej zaleca się regularną kontrolę i konserwację.
- Ręczne otwieranie i zamykanie bramy szybkobieżnej odbywa się za pomocą kluczy.
- Nie narażaj bramy szybkobieżnej na wstrząsy i nie zakłócaj jej swobodnego otwierania i zamykania.
- Nie dopuść do zanieczyszczenia prowadnicy PVC.
- Aby uniknąć obrażeń, zabrania się przebywania w otworze podczas otwierania i zamykania bramy szybkobieżnej.
- Upewnij się, że w otworze nie ma obcych przedmiotów podczas otwierania lub zamykania bramy szybkobieżnej.
Certyfikaty i deklaracje
Certyfikat zgodności
Dodatkowe informacje
Firma DoorHan wykonuje załadunek bram na samochody ciężarowe za pomocą dźwigu hydraulicznego lub wózka widłowego z wózkiem widłowym o długości co najmniej 2 m. Nabywca lub instalator musi zapewnić ten sam sprzęt do przemieszczania zapakowanych bram. Wtyczka musi przejść pod drewnianą paletą dostarczoną przez producenta i działać po drugiej stronie. W przypadku żurawia lub innych środków podnoszących zaleca się stosowanie zawiesi o odpowiedniej nośności.
Opakowanie
| Pakowanie w drewnie | Charakterystyka opakowania |
|---|---|
| Skład | folia bąbelkowa, styropian, paleta drewniana, pręty drewniane |
| Długość, mm | zależy od długości elementów bramy |
| Szerokość, mm | od 640 do 705 |
| Wysokość, mm | od 480 do 730 |
